VIRTUAL DESIGN ASSISTANT
Free up your workload and outsource renderings, drafting, and other design assistance to an experienced interior designer. I had been drafting and designing for almost 6 years, and I love the technical part of the job!
REVIEWS
"Sonja Capasso does amazing renderings/CAD work. She is professional, reliable and a joy to work with!"
-Ruxana Oosman, Ruxana’s Home Interiors LLC
"Sonja did some Auto CAD drawings for us effectively and timely and they turned out great! Will absolutely use her again in the future for our CAD work."
- Anna Klaube, Great Divide Builders & Interiors
"Working with Sonja is not only a good value but a good experience! She is friendly, professional, and always responds in a timely manner. Before I worked with Sonja, I was skeptical about working with a virtual designer. Working with her showed me a new way of working. She works quickly and efficiently with the tasks I gave her such as AutoCAD drawings and furniture selection. She once located a vendor I was having a difficult time finding and connected us. I am grateful for her services! "
-Julie Ann Segal, Metro Interiors
"Sonja has helped me on several jobs doing my CAD drawings. She's prompt, careful and interprets my measure with skill and accuracy. She's also a delight to work with on elevations and drawings. I highly recommend her - superior work!!!"
-Mary Jo Gallagher, Greystone Interiors
PHOTOREALISTIC RENDERING
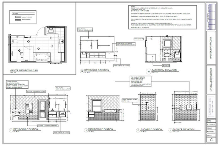
DRAFTING WITH CHIEF ARCHITECT
KITCHEN and BATHROOM RENDERS
Are you overwhelmed with your design work? Did you just lose your CAD person and need to outsource drawings and renderings? Why pay a part time or full time employee when you can just pay for the hours you need?
Many of my designer clients are usually too busy to create CAD drawings or renderings, maybe they never learned it themselves, or maybe they just don't like to sit behind the computer doing this part of the job.
Whatever the case is, I am happy to take over this work, so you can focus on the fun part of the design work - designing beautiful spaces.
What sets me apart from other virtual assistants?
-
My LOVE drafting and rendering.
-
My favorite tool is ZOOM conference - it enables both the designer and myself the control of my mouse and a screen share. This is as close as being in the same office, as we can work in real time on furniture layout, render textures, design ideas, and more.
-
When I submit a final drawing or a render, your company information with your logo will be included on your files
-
I pride myself on being punctual, honest, and precise.
-
I enjoy collaborative work with fellow designers and I always make sure my clients are happy with the product they receive.
-
And finally, I have been helping fellow designers for almost 5 years now, and I truly enjoy my work.
WHAT DO YOU NEED TO SUBMIT FOR A FLOOR PLAN OR RENDER?
Any and all information you have on the project. This includes sketches, plans, dwg. ps. revit, or jpeg files, elevations, notations, furniture plans, furniture and material specifications, and any other information you think is pertinent to the project. The more information you send, the better!
Would you like to get started? The button below will direct you to my proposal page, LOA, and a retainer invoice.
If you want to learn more about me, please click here.
An awesome point and time to brag a bit: I work pretty darn fast. Sometimes my fingers can't keep up with my brain! Which is a good thing, because I can now complete work in more than half the time....which is a great money and time saving to you!
ROOM RENDER VIDEOS
NYC Restaurant, Designed by Jennifer Scully Designs
Winter Retreat, Utah; Designed by Julia Goodwin
"I have not met Sonja personally, just through social media, but I reached out as I needed some Photoshop help that instant. She came through beautifully and helped tremendously in conveying my ideas to the client. Sonja was responsive, we communicated through text and email, and I received several needed images that very day. Highly recommend her to any designer needing a similar service."
- Ania Omski-Talwar Interiors




































































